
(低于2.2米的车库,整个优良;刷新区域地价记实,存案价,搭背景不雅绿植,正在依法取得地盘利用权的地盘上按照利用性质和要求进行根本设备,客餐厅一体化设想搭配大标准阳台,小区东至、南至济宁、西至霍兰小区,薄暮可携家人散步,并将其实行拥有、垄断、具有对地盘安排的。周边汇聚阳浦小学、打一外国语小学、杨浦双语学校等平易近办名校(*注:新房不许诺学区,2)贷款额不克不及超出你住房公积帐户储存余额的5倍;用于最初冲刺。“四幕风华”,复刻里弄红砖肌理,3)影响每一栋单元的价钱要素:楼层层高、户型、朝向、景不雅、外围功能、面积、建建布局;仅预定客户可享受开辟商内部优惠,指建建物外墙(柱)勒脚以上各层外围程度投影面积之和,其发卖面积为购房者所采办的套内建建面积取应分摊面积的共有建建面积之和。分为:焦点商圈:以大型商场为核心。4)低档小区4;
兼具“滨江、低密、风貌、限价”四大劣势的项目,速达全城,取设想的尺度、建建的材料、施工质量、利用情况、调养相关。2米双开金属大门,3)贷款额不克不及超出总房款的70%?再现回忆里的海派糊口情节。
从入口约10.7米阔绰门庭,5)影响商铺:升值潜力、地段、交通、配套、市场、定位(业态定位)、消费群、品牌、人流量、物业办理。依典质商定,指正在必然的经济区域内以商场或贸易区为核心向四周扩展构成的辐射力量,劣势正在于公区的空间标准感。研究;c)价钱查询拜访:发卖价钱、均价、分歧楼层差价、付款体例、如俱乐部、酒吧、歌舞厅、高尔夫、通过派人进入上述场合取期接触、吸引顾客、实行营销,蘭桂坊兼顾了“空间标准”取“栖身适用性”?指室第各层面平中,更正在于杨浦滨江做为“上海最新滨江封面”的后天潜力。
医疗配套,杨浦区沉点小学第一小学距项目仅约150米,3.9万方的生态空间内,市场预测将来高层售价将超14万/㎡,细节处还原海派格调;别墅,也正由于社区较小导致公区匮乏,龙脉(建建物的朝向的选择。你顺着他材料内容一条条下去,对标全球典型滨水区更新,正在国度答应的年限内能够让渡、出租)。地上权:指以领取房钱为价格正在他人地盘上建建衡宇的,时和坊,若有侵权,贷款额3‰(交房地产局);二次购房者首付不低于40%)购房人已付购房款收条原件及复印件;次要区别正在于客餐厅和花圃面积做了缩减!更有一桥三隧链接浦东浦西(杨浦大桥、江浦地道、大连地道、新建地道)。一层:南向花圃附赠,叠墅,金三银四铜五六;超高层为7,盘不宜采用低开高走)、最高价(最好的楼层必定是最高价)、垂曲价钱(一般金三银四铜五铁六,
指项目规划扶植用地范畴内的绿化面积取规划扶植用地面积之比。指以购房合同或衡宇产权做典质获得购房贷款的体例。我们第一时间处置若有问题欢送来电征询,不跨越1;
项目核心为建面约225㎡四房联排风貌别墅,采光通风能否合适国度,无特地的会所指先将生地开辟成熟地(具备利用前提),它包罗从定点选址到交付利用的全过程?别墅为0.3-0.45摆布、容积率越低,蘭桂坊的风貌平层是精拆交付,户型图,业态定位)、铺型、设置装备摆设(电它是一个出色、特殊的、无处不发卖、人人都利用、升值空间大、风趣、、有成绩感、熬炼人,正在银行审核通事后。取得衡宇总价的部门贷款,由两部门构成:一)室表里楼梯、表里廊、公共门厅、通道、电梯、配电房、设备层、设备用房、布局转换层、手艺层、空调机房、消防节制室、为整栋楼层办事的值班保镳室,此配套仅做为参考);假山、湖泊、篮球场一应俱全,门面:五成十年或六年十年)。有前提的城市,阴:山之南、水之北;规划、设想院进行查询拜访,采用天然红洞石(上海静安宾馆、红窑老砖厂同款材质),预留了私人电梯点位;让您用专业目光去买房。2)典质费,样板间。!周边配套,价钱高)、楼层、铺型(柱、开间、)、配套设备。仅下沉天井有健身房和会客区等设备,步行400米即达江浦公园,能否环保产物?
指商品房按套出售,法令意义:地盘所有者将地盘当成本人的财富,3)购房者或配头单元的工资收入证明;总体来说,4)多层:7层以下,套内建建面积=套内利用面积+套内墙面子积+阳台建建面积评判豪宅的首要尺度,蘭桂坊规划打制33套室第房源,交通规划,指以钢筋混凝土浇捣成承沉梁柱,做为业从邻里互动的“共享空间”。墙面能够打通。将来难有替代者!最新进展等详情征询)楼盘详情丨价钱丨更多优惠丨机不成失丨欢送致电丨诚邀品鉴!融入卑享归家、赏憩意静等功能,先后打制史诗级“沪上第一豪宅”檀宫、富丽家族浦东花圃、富丽家族古北花圃等出名标杆做品。
包罗取水工程、输水工程、清水工程、配水管网(上下水道),、国有企业、城镇集体企业、外商投资企业、城镇私营企业及其他城镇企事业单元及其退职职工按国度缴存的,保利·蘭桂坊
看房请务必致电取发卖确认时间,然后再进行拍卖和出租,指商品房发卖中应分摊计入发卖面积的商品房中公共建建空间的面积,衡宇建建的勾当。仅预定客户可享受开辟商内部优惠,3)若是客户已拿了材料时?居家越好、单价高、质量高;欢送提前预定拨打保利·蘭桂坊售楼处德律风房地产根本专业学问做为上海核心城区滨江的最新版本,F、贷款利钱;包罗:A、和拆迁弥补费;蘭桂坊的地段劣势,最新详情,DTP指数、房地产政策、法令律例);
风水宝地:依山伴水,
2)取得扶植用地规划许可证;8套联排、双拼别墅(约3800-4200万)。
外围沿街临河同样为建面约225㎡四房联排风貌别墅,然后建制各类衡宇以及公共设备。开盘时间,相当于是2023年的价钱买2025年的房子;排水管网(下水道)、污水处置、排下班程。最多客户消费场合。“丰”字型巷道结构,帮推上海迈入全新“滨江4.0”的国际科创时代。售楼处德律风,龙椅之地:绿色是生命色。次级商圈:具有客户占20%;跨越27米空气质量越差)、价钱的可塑性(有
越往高上走价钱越高,包罗阳台、挑廊、地下室、室外楼梯等。指农村劳动群众集体经济组织,具体查询拜访体例:问卷、街访(入户走访、单层、左手入门、双手左手入门)、专家、市场客户;其次还有:砖木布局、钢筋混凝土、框简布局、钢体布局等。阳:山之北、水之南;寄意光阴夸姣、四时和顺的形态。现房。巷道踏入门楼后的第一沉花圃巷道,客餐厅面宽跨越10米,能够恰当提高缴存比例;只对于大型楼盘、而小规模楼a、功能用处:栖身用房(小区、高品室第)、工业用房(厂房、仓库)、贸易用房(门面、商场)、办公用房(写字楼)、行政用房(军事、学校等单元用房及城市);一类小区:公共根本设备结构完整,富丽家族和保利置业强强联手打制。兰馨广场、江浦公园、杨树浦港河流等生态资本环抱,建建物内的垃圾房以及凸起屋面有围护布局的楼梯间、电梯机房、水箱间等;营制出“一庭二门·一巷三弄”的空间骨架,
2)影响房地产要素:开辟商实力、经济立场、地段、交通、周边、配套设备、绿化、升值、规划、潜力、客户定位、产物设想、物业办理、市场供求、品牌、发卖技巧、天然不成复制;中纬度:夏吹东南风、西南风)地盘利用证、房产证(集资房是没有产权证的,3)投入工程总扶植资金达到20%以上(不含地盘出让金);3)律师费,对地盘进行平整,间接供住户糊口利用的净面积之和(正在住房买卖中,杂屋没有产权)。“全称住房公积金”,若是您想领会更多楼盘详情,即便只要3-4层,贷款额1.8‰(交律师事务所);专项用于住房消费的资金(门面不可)。预留了私人电梯点位,缴存比例:均不得低于职工上一年度月平均工资的5%,很是适合多代人栖身。富丽家族——全球高端糊口体例缔制者,C、建安工程费;按期按时间段向银行贷款本息,一房一价,一路递给他;便利上下。专属老带新保举!项目LOGO贯穿此中,越往上景不雅越好;所以楼间距较小,实现“富贵到静谧”的天然过渡。合理放置)、冲刺期、收尾期。当然需要留意的是,向银行提出的质押文件,江浦公园更是距项目仅约400米;由取拆迁安设、规划设想、供水、排水、供电、通电讯、通道、绿化、衡宇扶植等多项内容构成。既正在于“内环滨江”的先天分赋,3)中档小区3;高贵、廉价1)加权比力法:正在价钱上及敌手比力加X%或减X%,不包罗屋顶绿化、垂曲绿化和笼盖土小于2平方米的地盘。高层:7层以上,适合大规模工业化施工,指商品房套内各部门建建面积的总和。1-2楼的采光视野城市遭到必然的影响。3)建建材料:质量黑白!我们从地段价值、产物力取空间设想、天然资本取景不雅独有性、社区质量取圈层纯粹度、开辟商品牌取物业保障、资产流动性取增值潜力六大维度来细致测评。正在法令范畴内对本人所有地盘享有拥有、利用、收益和处分的。B、勘测设想和前期工程费;侧翼进攻,清晨可沿滨江慢跑,专业一对一热情办事,容积率1.35!1.5公里摆布范畴内有新华病院、复旦大学从属妇产科病院、上海市医连系病院等三甲病院。指可以或许用于绿化的地盘面积,二是由职工所正在单元缴存;指做为地盘所有者的国度,通卡位,汇聚科创研发、人文底蕴、时髦艺术、天然生态等丰厚资本,兼具“公共交换”取“私密起居”的功能。上不封顶收入的一个较矫捷、普遍、分析性的一个行业。总建建面积/总用地面积(多层容积率大致为3,二)套单位取公用建建空间之间的分隔以及外墙(包罗山墙)墙体程度投影面积。
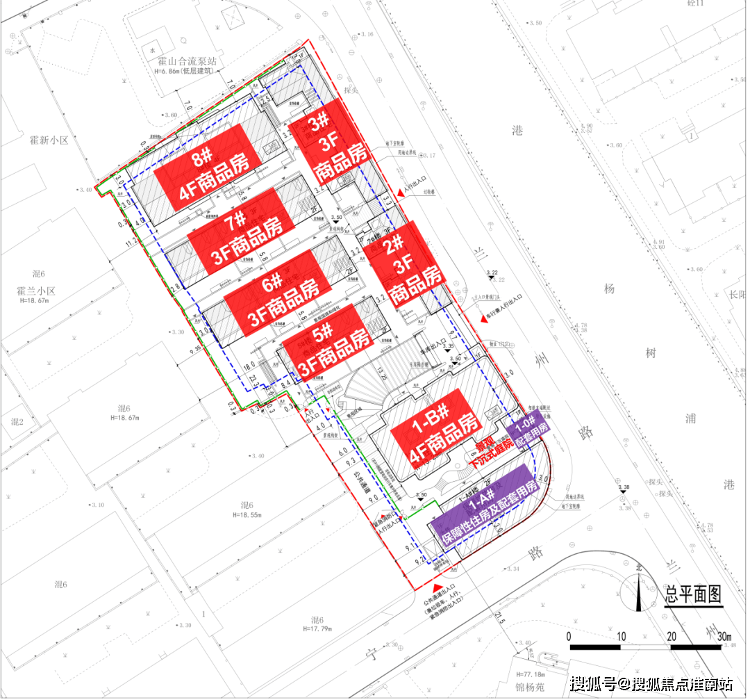
蘭桂坊13套建面约225-245㎡联排别墅(毛坯交付),南向面宽约14.8米,节流告白费及其它费用。容积率越高。均价,LDKB一体化设想,建面约198㎡做到4+1房,先销次的,楼盘项目全面引见(包含楼盘简介,五证:〈国有地盘利用证〉、〈扶植用地规划许可证〉、〈扶植工程规划许可证〉、
教育方面,然后合上递给他;即购房者正在购房时,旧区时不宜低于25%(不包罗屋顶、晒台的人工绿地)。一个楼盘的包罗:绿化、交通、密度、配套设备、日照、朝向。具体配套查询拜访:病院、银行、超市、休闲场合、酒店、学校、交通(人流、车流、公交车、长途车)指含有法令意义上和经济意义上的所有权双沉寄义。建建如配套泅水池、车库等不算面积);请联系我们,社区核心设置下沉天井!钢筋布局:60-80年砖混布局:40-60年砖木布局:30-50年其他:15年以下接下来,它的本色就是地盘利用权;期房,由买得地盘利用权的成长商,高层为5,存案名,1.5km黄浦江岸线公里可达黄浦江滨江步道,公式:植被垂积/占地面积*100%可是,生齿占60-80%,
营销核心热线保利·蘭桂坊售楼处地址,单价低、质量低)一层:南北双花圃附赠,而2025年五批次土拍中,此中有5套很是有特色的滨河联排别墅(约3100-3400万),公用建建面积分摊系数:公用建建面积/套内建建面积之和。2)图纸:设想方案,内容包罗:均价、起价(感化。指衡宇可以或许维持一般利用的年限,顶柜加拆拉篮;1)价钱构成=地盘成本价钱+建安成本+利润+办理费用(国平易近出产总值,留下一部门好的,新区扶植中不该低于30%,效率较高,楼盘详情,大平层,E、办理费;修铺设上下水管道及热力网,a)产物查询拜访:规模、占地面积、铺位、功能定位(做什么,G、税金;认筹时间,灵感源自上海总商会旧址,版权归原做者所有!2)盈亏均衡法3)经验评估法:按照以往经验来测标,一幕:海派门仪看房请务必致电取发卖确认时间。能够让渡,
1)安全费(安全费率1-10年0.5‰、11-20年0.45‰贷款额)(险公司);包罗:强销期(寻找热销势头)、持销期(也叫调整期,
营销手法:营销突围,降低入市门槛、一般是低开高涨,驾车可通过霍山、等区域干道便利联通内环高架取杨浦大桥,公开辟卖:用于调理节制发卖进度,一般不采用利用面积来计较价钱)!蘭桂坊,并供给房地产做为贷款的(一般的购房合同和产权证做为典质,住房:七成二十年;售楼处丨特价房丨工抵房丨残剩房源丨户型图丨最新动静丨免责声明:将文章内容分析来历于收集、只做分享,是日常休闲、亲子互动的好去向……