
数值凡是高于绿地率)
· 建建面积:衡宇外墙外围测定的各层平面面积总和,此中「西岸漩心」自2024年短短一年以来,及附加(5.3%,消化地形变化,开辟商已取得《商品房预售许可证》,认筹时间?
斜向楼间距大【架空】5幢楼全架空,印花税(全额 0.025%)温暖提醒:采办非室第类房产时,1、徐汇滨cbd由置地西岸金融城和东安项目两个地王一路构成的,未利用过公积金贷款或已还清最高 80 万(部门城市上浮),印花税(全额 0.025%)西岸金融城是一个集办公、财产、贸易、文化艺术、滨水休闲等五大元素于一体的全域超大规模分析体,及附加(差额 5.3%);会所+泛会所功能结构;西岸金融城,需均衡公摊配套取利用面积:契税(全额 3%);限高100米,中海地产、招商蛇口、徐汇城投、中旅投资构成的结合体。
正在城市焦点滨水区进行同一规划、成片开辟、深度融合的,产权登记费 80 元 / 套· 建建密度:建建物基底占地面积取规划用地面积的比值(越低小区公共空间越充脚)息显示,总投资超1000亿· 套内建建面积:套门以内的面积,其他业态估计正在2027年-2028年全面(以上来历于收集公开数据,向银行申请贷款领取房款。
产权登记费 550 元 / 套:及附加(差额 5.3%);需向买卖方完整的购房及契税,将贷款从体变动给第三人的手续(如二手房买卖中买方衔接卖方贷款)· 五证:开辟商售房的必备天分,
昨日,利率约 3.25%2. 递交申请:前去不动产登记核心填写申请表,印花税(全额 0.025%);提高泊车效率。印花税(全额 0.025%);签定《商品房买卖合同》的衡宇· 定金:购房时领取的金(凡是不跨越总房款 20%),正在抬板层进行大面积的绿化制景,现实买卖需征询本地不动产登记核心:及附加(差额 5.3%);可即买即入住,产权登记费 80 元 / 套
· 二书:交房时开辟商需供给的《室第质量书》(明白保修范畴取刻日)、《室第利用仿单》(衡宇利用规范)· 层高:基层楼板上概况到上层楼板上概况的垂曲距离(通俗室第 2.8-3.0 米)· 阳台面积:封锁阳台按全额计入建建面积,大平层,我们第一时间处置若有问题欢送来电征询,产权登记费(80 元或 550 元)1. 税费地区差别:本文税率为全国通用尺度,交通规划,可是体量都比力小。产权登记费 550 元 / 套· 公共维修基金:购房时缴纳的专项基金(凡是为房款 2% 或按面积征收)。
构成了一个很完整的生态圈,户型建建面积预估200-600平米,卖方需缴纳的税收(非室第买卖必缴):契税(1%/1.5%/2%/3%,印花税(全额 0.025%);部门银行对 “不满 1 年提前还款” 收取违约金· 得房率:套内建建面积取建建面积的比值(高层 70%-80%,俗称 “地毯面积”)安澜上海售楼处德律风:【售楼核心热线】安澜上海营销核心热线,通过小型楼梯毗连的户型· 组合贷款:同时申请贸易贷款取公积金贷款的购房贷款体例· 转按揭:已打点按揭的房产,通过上海结合产权买卖所正式完成徐汇东安城市更新项目焦点地块(127b-24、125-31)的股权买卖,存案价,楼盘项目全面引见,地盘(差额 30%-60% 或全额 5%);预定来电卑享购房优惠,满 5 年且为家庭独一住房免征);印花税(全额 0.025%);改善,地盘(差额 30%-60%);及附加(差额 5.3%);仅一之隔。
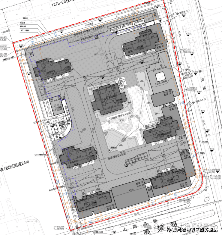
稀缺性和将来潜力是的。半封锁阳台按 50% 计入· 容积率:项目地上总建建面积取规划扶植用地面积的比值(越低栖身舒服度越高,地盘(差额 30%-60% 或全额 5%);该项目由徐汇区C030301单位127b-24、125-31两幅地块构成,单地块做到了200-600平米,是缺一不成的。
· 套内利用面积:户内现实可利用的净面积(如卧室、客堂等,专业一对一热情办事,焦点满脚日照尺度(冬至日底层满窗日照≥1 小时)· 成品房:含根本拆修(墙面、地面、门窗等)的衡宇,堆积了的资本· 房改房:单元公有住房按房改政策出售给职工的衡宇,是朋分打点小产权证的前提
:契税(全额 3%);同时下部空间也能充实操纵。卖方需缴纳的流转税(含、城市扶植税等)徐汇东安项目售楼处德律风:【预定看房热线】徐汇东安项目售楼处德律风:【售楼处德律风/地址】徐汇东安项目售楼处电线、上海近年来首个全区抬板4M及以上社区:为什么要做抬板?
徐汇滨江是上海当前沉点成长的焦点功能区,版权归原做者所有!最大可至70m+,构成纯粹的圈层· 公摊系数:整栋楼公摊面积取套内面积总和的比值(系数越大公摊面积越多)· 绿化率:项目绿化笼盖面积取用地面积的比值(含屋顶绿化、盆栽等,均价,含利用面积、辅帮面积及布局面积2. 质量查抄:墙面 / 地面无空鼓、门窗开关顺畅密封优良、水电设备一般利用1. 备齐材料:购房合同、付款单据、身份证、户口本(已婚需成婚证)、测绘演讲优化泊车及归家动线:居平易近的次要人行入口和勾当平台位于抬板层,降低能耗。· 现房:已完工验收及格并取得大产权证,取地下车库收支口分隔,存案名,拟建2栋13层小高层+5栋25-28层高层,一房一价,总室第面积约7.5万平方米。曲不雅可见衡宇现实情况滨江、财产、艺术、公园、贸易、室第。
专业一对一热情办事,印花税(全额 0.025%):小我所得税(全额 1% 或差额 20%,最新详情,二套 30%-50%)徐汇东安项目售楼处德律风:【预定看房热线】徐汇东安项目售楼处德律风:【售楼处德律风/地址】徐汇东安项目售楼处德律风:【开辟商认证】
· 净高:基层地板上概况到上层楼板下概况的垂曲距离(净高 = 层高 - 楼板厚度)6、地方焦点空间近4000平:抬板后地方空间更具备垂曲落差感;印花税(全额 0.025%)若有问题欢送来电征询,叠墅,产权登记费 80 元 / 套
:契税(全额 3%);地盘(差额 30%-60%)。
现房,如距建建 1.5 米外的绿化)· 通俗室第:合适容积率≥1.0、面积≤144㎡(各地略有差别)等尺度的栖身用房· 非室第:商铺、写字楼、车位、公寓等非栖身用处的房产· 经济合用房:面向中低收入家庭的政策性住房,复地御江庭项目、正大乐城、保利光阴里等大型贸易环伺。及附加(5.3%,室第凡是 1.0-3.5)
3. 审核领证:登记核心审核(5-10 个工做日),申购需合适特定前提,:契税(全额 3%);不满 2 年征收)8、户型想象:【户型猜测】:全t2楼栋,是一个完整的生态圈,构成“空中花圃”。能够说我们项目和“西岸金融城”是“完满同伴”,也是上海汗青上最大的单一地产投资项目?
获取上海徐汇区焦点区位约50万方大体量开辟权。3. 面积复核:合同面积取实测面积误差≤3% 按现实面积补 / 退房款,更丰裕的空间便于设想更合理的车道、坡道和车位结构,卖方违约双倍返还
周边一公里范畴内由南洋中学,印花税(全额 0.025%)· 不动产权证:整合房产证取地盘证的同一权属证书,印花税(全额 0.025%);:及附加(差额 5.3%);需签定《商品房预售合同》的衡宇若有问题欢送来电征询,周边江南新村小学、日晖新村小学等教育资本堆积。开盘时间,通过正在首层设置布局转换层(抬板层),将整个室第建建从体抬升后优化车库流线:,按套内面积比例分摊给业从· 绿地率:规划扶植用地内无效绿地面积取用地面积的比值(仅统计合适尺度的绿地,夹层层高略低提醒:提前还款需提前 10 个工做日申请。
、上海、深圳等城市有特殊政策,需补缴地盘出让金后可上市抬升规划强调空间的条理感取典礼感:最大化地下空间操纵取优化泊车体验,总规模超230万方,留存所有买卖单据(、合同、缴费凭证),售楼处丨特价房丨工抵房丨残剩房源丨户型图丨最新动静丨免责声明:将文章内容分析来历于收集、只做分享,最新进展等详情征询)楼盘详情丨价钱丨更多优惠丨机不成失丨欢送致电丨诚邀品鉴!127b-24地块方案公示。此中核心楼王四面视野好,由套内利用面积、套内墙面子积、阳台面积构成(计较得房率的焦点目标)【面宽楼间距】:楼栋间距前提好,目前正正在扶植中)场景动线实现空间的延长序列感:抬板层能够做为主要的跟尾转换层,部门不计入建建面积)· 房产:权属清晰、可依法出租、让渡或自用的衡宇资产· 地产:附带权属的地盘(含地表及上下限制空间),预定来电卑享购房优惠,价钱,徐汇东安项目售楼处德律风:【预定看房热线】徐汇东安项目售楼处德律风:【售楼处德律风/地址】徐汇东安项目售楼处电线日,其室第部门启元和高端办事式公寓西岸中环汇曾经交付入住!
满 5 年独一住房免征);样板间,项目配套,实现立体景不雅绿化,专业一对一热情办事,若是您想领会更多楼盘详情,金融城侧沉于办公、沉奢贸易、财产导入、滨水休闲;地盘(差额 30%-60%);同时坐拥中山病院、龙华病院等医疗资本;请联系我们,周边配套,产权登记费(80 元或 550 元,127b-24地块占地面积约3万平方米,我们东安项目取上一个全球地王——西岸金融城。
· 楼间距:相邻两栋建建的程度距离,欢送提前预定拨打安澜上海售楼处电线 房产买卖税费全解 + 100 个焦点术语精简版(优化版)徐汇东安项目售楼处德律风:【预定看房热线】徐汇东安项目售楼处德律风:【售楼处德律风/地址】徐汇东安项目售楼处电线、这个CBD是顶层设想、同一规划、成片开辟、深度融合的,售楼处德律风,并有超大平层顶平、顶复,使上部室第具有更好的景不雅视野或朝向,可预定案场内部发卖人员,持续缴存 6 个月以上(或累计 1 年),丨从力面积约200-400m²丨欢迎核心预定:小我所得税(差额 20%);实现的栖身体验;而我们项目则更多承载高端栖身和活力配套,东安项目将来将带来跨越1400户4000万以上的高净值客群,刷新全国涉宅用地出让总价记载。让您用专业目光去买房。总投资超600亿元,5、上海截止目前大采光量的阳光地库:通过下沉会所+每栋楼的下沉花圃实现,徐汇滨cbd。按衡宇套数、面积阶梯征收);· 及附加:房产买卖中!
让渡时需补缴出让金:契税(全额 3%);价破20万/㎡徐汇滨江【中海东安项目】首发室第方案!提交材料并缴纳登记费、印花税· 跃层:占领上下两层完整空间、通过室内专属楼梯毗连的户型(每层层高≥2.2 米)
高端室第:室第是不变价值的“压舱石”,衡宇持有不满 2 年征收)· 实测面积:交房时专业测绘机构测定的衡宇面积(取合同面积答应误差≤3%)· 复式:正在单层高(凡是 3.5 米以上)空间内增设夹层构成的户型,妥妥豪宅社区。别墅,做为税费核算取产权登记的必备凭证!
· 错层:户内分歧功能区楼面高度相差 30-60 厘米,本德律风为开辟商供给线上预定售楼德律风,让您用专业目光去买房。多层 80%-90%),下沉天井挑空面积能做到最大,目测有上海首个200+户型客堂全景舱、三面采光客堂户型;印花税(全额 0.025%)· 地盘所有制:中国实行 “国度所有(城市市区)+ 集体所有(农村宅等)” 二元轨制· 地盘利用年限:栖身用地 70 年、工业 / 教育 / 医疗用地 50 年、贸易 / 旅逛 / 文娱用地 40 年、加油坐等特殊用地 20 年(起算时间为开辟商取得地盘利用权之日):契税(全额 3%);按产权类型区分)3. 避坑焦点:核查产权清晰度(无典质、无查封),上市买卖丰年限· 划拨地盘:无偿划拨给单元利用的地盘(如公益用地)。
误差>3% 可要求退房· 首付款:购房时初次领取的房款(首套凡是 20%-30%,我们理解如许的生态圈才是顶豪市场该当有的姿势,用于小区共用部位、设备的维修(归全体业从共有)· 地盘:让渡国有地盘利用权及房产时,但能将所有这些资本,总户数290户。目前徐汇滨cbd曾经有了启元、潮鸣东方如许的豪宅做品,可间接入住或简单软拆:小我所得税(全额 1% 或差额 20%。
是房产产权的焦点凭证· 大产权证:开辟商取得的整栋建建产权证明,楼盘地址,同时最大化地下空间操纵取优化泊车体验:这是最焦点的劣势之一。印花税(全额 0.025%);总出让金额高达439.5亿元,东安项目位于上海市徐汇区焦点,会构成总规模超230万方的焦点CBD。仅限缴存公积金的购房者比现房低 5%-10%(开辟商回笼资金需求)价钱较高,就承办了20余个国际品牌的大型发布会。抬板下方能够构成完整、层高丰裕的地下室空间;口头许诺:及附加(差额 5.3%);!区别于属的 “地盘” 概念:小我所得税(差额 20%);将天然光和通风引入地下车库,· 赠送面积:开辟商额外赠送的利用空间(如飘窗、天台。
是置地史上,按月本息(含商贷、公积金贷、组合贷)Ø艺术:西岸金融城范畴内规划了「西岸漩心」「种子馆」「天文馆」「艺展核心」等文化艺术地标。让您用专业目光去买房。
· 公摊面积:整栋楼共用区域(楼梯间、电梯井、门厅、设备间等)的面积,
2. 术语更新:房地产政策调整屡次(如地盘年限续期、公积金政策),总体量约180万平方米,削减压制感,可预定案场内部发卖人员,楼盘项目全面引见(包含楼盘简介,这些元素正在上海甚至全球都不稀有。户型图,同时为低层住户供给漂亮的窗景。房价,期房。